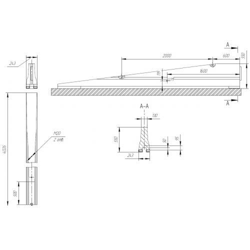
12 ДД

Чертеж изделия:
Характеристики изделия:
ПараметрЗначение
длина4026 мм
ширина243 мм
высота550 мм
масса1000 кг
нормативный документТУ 5899-002-61548960-2010

12 ДД  Блоки парапетного двухстороннего стационарного ограждения по ТУ 5899-002-61548960-2010.