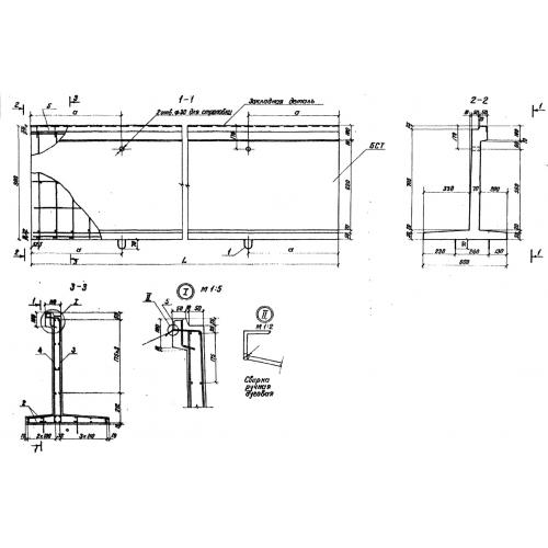
БСТ-40

Чертеж изделия:
Характеристики изделия:
ПараметрЗначение
длина3980 мм
ширина600 мм
высота800 мм
вес874 кг
серияТП 501-07-5.84

БСТ-40 Стенки бортовые по проекту ТП 501-07-5.84.