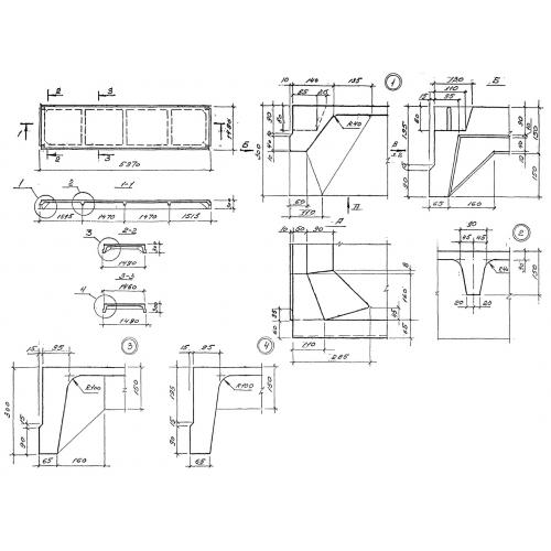
2ПГ 6
Характеристики изделия:
| Параметр | Значение |
|---|---|
| длина | 5970 мм |
| ширина | 1480 мм |
| высота | 300 мм |
| вес | 1500 кг |
| Шифр | М33.15/92 |
Цена:
Рассчитать стоимость2ПГ 6 Ребристые плиты по Шифру М33.15/92.
| Параметр | Значение |
|---|---|
| длина | 5970 мм |
| ширина | 1480 мм |
| высота | 300 мм |
| вес | 1500 кг |
| Шифр | М33.15/92 |
2ПГ 6 Ребристые плиты по Шифру М33.15/92.
