КК 108

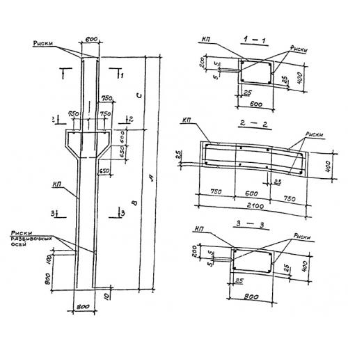
Чертеж изделия:
Характеристики изделия:
ПараметрЗначение
длина11850 мм
ширина400 мм
высота2100 мм
вес9900 кг
Шифр2021-164.1

КК 108 Колонны по Шифру 2021-164.1.