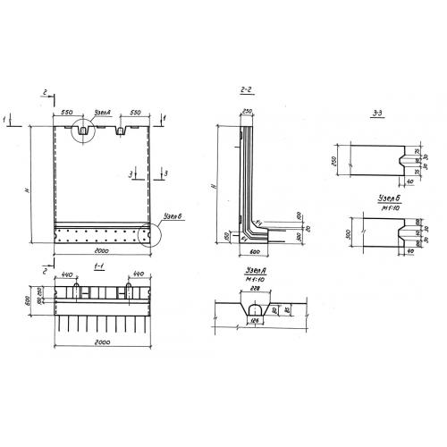
Г 20.20
Характеристики изделия:
| Параметр | Значение |
|---|---|
| длина | 2000 мм |
| ширина | 600 мм |
| высота | 2000 мм |
| вес | 2880 кг |
| серия | 3.820.1-73 |
Цена:
Рассчитать стоимостьГ 20.20 Г-образная конструкция для водохозяйственного строительства по серии 3.820.1-73.
| Параметр | Значение |
|---|---|
| длина | 2000 мм |
| ширина | 600 мм |
| высота | 2000 мм |
| вес | 2880 кг |
| серия | 3.820.1-73 |
Г 20.20 Г-образная конструкция для водохозяйственного строительства по серии 3.820.1-73.
