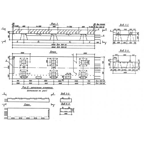
3БН 55
Характеристики изделия:
| Параметр | Значение |
|---|---|
| длина | 5500 мм |
| ширина | 1200 мм |
| высота | 500 мм |
| вес | 7300 кг |
| серия | 3.503.1-79 |
Цена:
Рассчитать стоимость3БН 55 - блоки насадок. Насадки на сваи по серии 3.503.1-79.
| Параметр | Значение |
|---|---|
| длина | 5500 мм |
| ширина | 1200 мм |
| высота | 500 мм |
| вес | 7300 кг |
| серия | 3.503.1-79 |
3БН 55 - блоки насадок. Насадки на сваи по серии 3.503.1-79.
