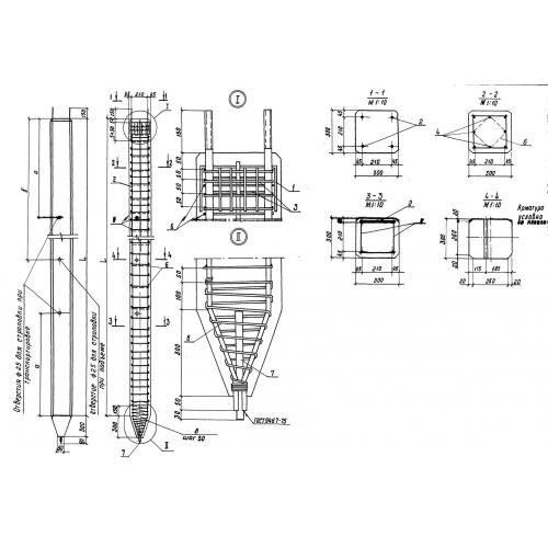
С 120-30
Характеристики изделия:
| Параметр | Значение |
|---|---|
| длина | 12000 мм |
| ширина | 300 мм |
| высота | 300 мм |
| вес | 2700 кг |
| серия | 3.501.1-153 |
Цена:
Рассчитать стоимостьС 120-30 Сваи с прямоугольным сечением по серии 3.501.1-153.
| Параметр | Значение |
|---|---|
| длина | 12000 мм |
| ширина | 300 мм |
| высота | 300 мм |
| вес | 2700 кг |
| серия | 3.501.1-153 |
С 120-30 Сваи с прямоугольным сечением по серии 3.501.1-153.
