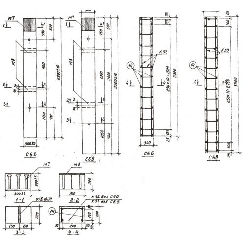
С 6 В столб забора

Чертеж изделия:
Характеристики изделия:
ПараметрЗначение
длина3200 мм
ширина200 мм
высота300 мм
масса500 кг
нормативный документСерия 3.017-1

С 6 В   Столбы оград Серия 3.017-1.