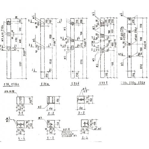
С 3 Б столб забора

Чертеж изделия:
Характеристики изделия:
ПараметрЗначение
длина2400 мм
ширина140 мм
высота140 мм
масса120 кг
нормативный документСерия 3.017-1

С 3 Б  Столбы оград Серия 3.017-1.