П 24/2 плиты лотков
Характеристики изделия:
| Параметр | Значение |
|---|---|
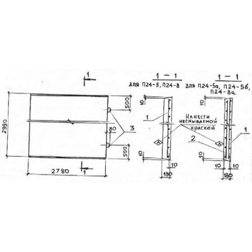
| длина | 1495 мм |
| ширина | 2780 мм |
| высота | 180 мм |
| масса | 1870 кг |
| нормативный документ | Серия 3.006.1-2/87 |
Цена:
Рассчитать стоимостьП 24/2 Плиты перекрытия лотков Серия 3.006.1-2/87.
| Параметр | Значение |
|---|---|
| длина | 1495 мм |
| ширина | 2780 мм |
| высота | 180 мм |
| масса | 1870 кг |
| нормативный документ | Серия 3.006.1-2/87 |
П 24/2 Плиты перекрытия лотков Серия 3.006.1-2/87.
