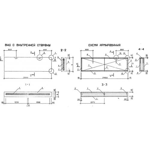
ПСТ 30.9.3.0 панели стеновые

Чертеж изделия:
Характеристики изделия:
ПараметрЗначение
длина2980 мм
ширина300 мм
высота885 мм
масса1040 кг
нормативный документСерия 1.232.1-7

ПСТ 30.9.3.0  Панели стеновые трехслойные (рядовые)  Серия 1.232.1-7.