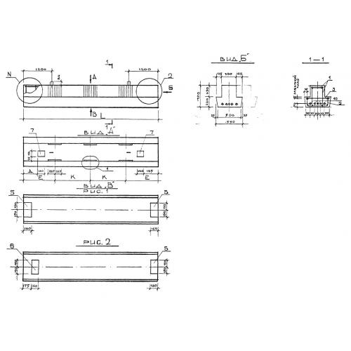
РДС 4.59

Чертеж изделия:
Характеристики изделия:
ПараметрЗначение
длина5870 мм
ширина550 мм
выота450 мм
вес2700 кг
серия1.220.1-2

РДС 4.59 Ригели покрытий по серии 1.220.1-2.