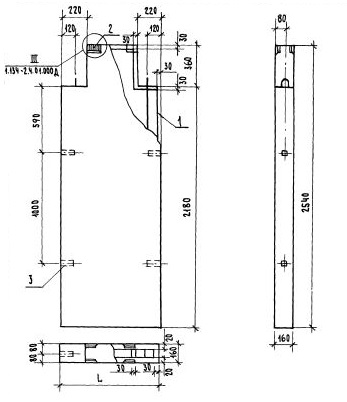
СБ-10.26.1-т-4

Чертеж изделия:
Характеристики изделия:
ПараметрЗначение
Длина980 мм
Ширина160 мм
Высота2540 мм
Масса930 кг
Нормативный документСерия 1.134-2

Блоки внутренних стен толщиной 16 см и вентялиционные блоки для жилых зданий высотой 1-4 этажа и общественных зданий высотой 1-3 этажа по Серии 1.134-2.

СБ-10.26.1-т-4   Стеновой блок.