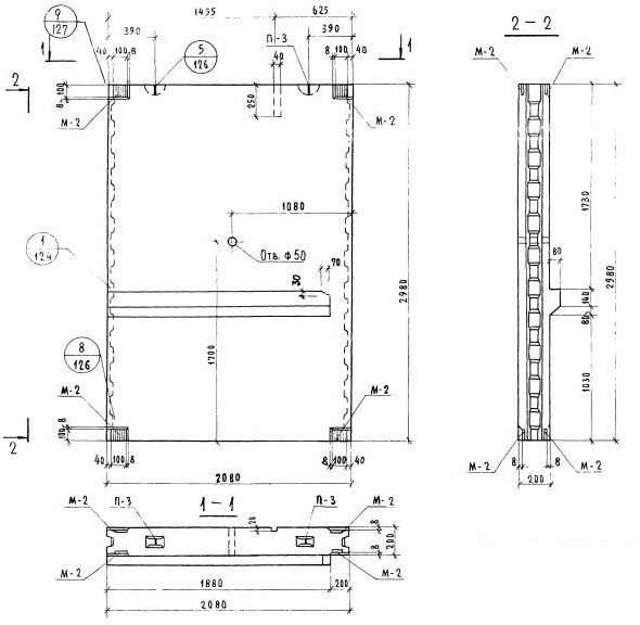
СБВЛ-21.2.30т-1л

Чертеж изделия:
Характеристики изделия:
ПараметрЗначение
Длина2080 мм
Ширина200 мм
Высота2980 мм
Масса3150 кг
Нормативный документСерия 1.134-1

Блоки внутренних  стен  по Серии 1.134-1.

СБВЛ-21.2.30т-1л   Стеновой блок внутренний лестничный.