ПР 60.15

Чертеж изделия:
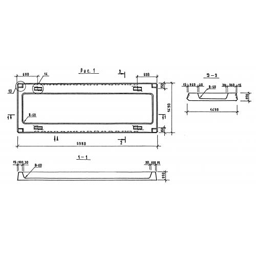
Характеристики изделия:
ПараметрЗначение
длина5980 мм
ширина1490 мм
высота220 мм
масса2595 кг
нормативный документСерия 1.090.1-1

ПР 60.15  Плиты перекрытия ребристые Серия 1.090.1-1.